DED FOR CSA KCP 600 TPD LUBUK GAUNG, DUMAI - SINARMAS
KLIEN
PT PARAMITA BAGUNA SARANA
LOKASI
DUMAI
KATEGORI PROYEK
DESIGN ENGINEERING
DURASI PROYEK
6 AUGUST - 30 AUGUST 2024
NILAI PROYEK
IDR 560,000,000
DED FOR CSA KCP 600 TPD LUBUK GAUNG, DUMAI - SINARMAS
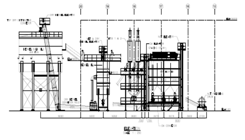
Scope :
Building KCP
Building PK terminal / unloading
Building tower conveyor & dryer
Foundation PK Silo
Supporting Foundation Conveyor, Cable Rack, etc.
Road
Area truck parking
M&E building (lighting, power socket, plumbing)
Segregasi PKE Warehouse : retaining wall, conveyor support, etc
Stakeholder
PROJECT GALLERY
PT RAPID INFRASTRUKTUR INDONESIA
Talavera Office Park, Lt.12, Jl. TB Simatupang Kav. 22-26, Cilandak Barat, Kec. Cilandak, Kota Jakarta Selatan, DKI Jakarta (14430)
